30' x 42' Winsted Barn I
$695.00
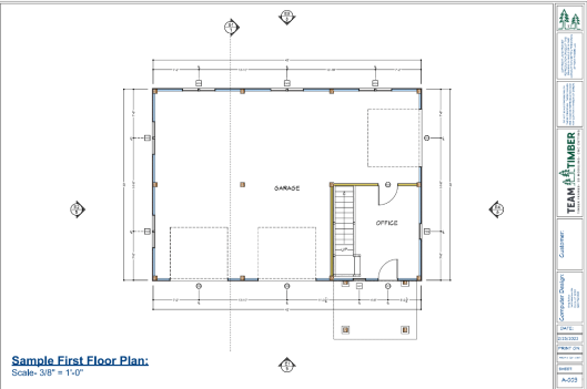
This 30' x 42' Winsted Barn I would be great just about anywhere. This full plan includes everything to get you started building your dream Woodshop. We provide a sample foundation plan, sample first floor plan, sample architectural elevations with door and window schedules, a cross section detail, timber/fastener/connector list, all wall layouts, beam layouts, rafter layout, fastening details, and all single beam drawings. It uses 8x8 posts, 8x12 plate beams, 8x14 girders, 6x10 and 6x12 joists, 4x6 knee braces, 8x12 ridge plates and 4x10 rafters. Let us help you get started today with this set of plans!
Building Specifications:
- Size: 30' x 42'
- Total Square Footage: 2,036
Frame Specifications:
*Timbers are 1/2" Under Full Dimension*
- Joinery: Mortise and Tenon
- Posts: 8x8
- Plate Beams: 8x12
- Girders: 8x14
- Joists: 6x10 and 6x12
- Ridge Plates: 8x12
- Knee Braces: 4x6
- Rafters: 4x10
- Roof: Main:8 Pitch; Dormer: 4 Pitch
- Wall Height: First Floor: 8'-6"; Knee Wall: 2'-10 1/2"
This Plan Includes the Following:
Architectural Items:
*All Architectural Item Pages to be Printed on 24" x 36" Paper Size*
Elevations
Floor Plans
Door and Window Schedules
Electrical Plan
Foundation Plan
Roof Plan
Wall Section
Building Section
Stair Specifications (if applicable)
Timber Frame Items:
*Timber Frame Construction Document Pages and Single Beam Drawings to be Printed on 11" x 17" Paper Size*
- 3D Renderings
- Material List
- Wall/Post Layout
- Wall Layouts
- Joist Layout
- Rafter/Plate Layout
- Fastening Details
- Single Beam Drawings
Quantity
Timber Frame Kit Package
The CNC Pre-Cut Frame for this Barn starts at $44,995. Contact us for more information.
Delivery
After checkout, you’ll receive a short form to provide your name, location, and basic project info. We’ll personalize your plan set and send it to you within 2–3 business days via email. Please save your file and print according to the page sizes noted on the drawings.
Building Disclaimer
The frame design shown has not been engineered and is only intended as a general outline. It is the sole responsibility of the homeowner and/or contractor to determine if local or state code requires an engineer’s stamp on plans before erection. Team Timber, LLC does not design to a specific area and for that matter will not hold any reasonability or warranty plans if plans do not satisfy the requirements of local and/or state building codes.
Copyright Policy
The buyer agrees that when purchasing a plan, they may only build one structure or building per plan bought. They cannot reproduce the plan or any part of it without written consent of Team Timber.
T-Rex Connector Conversion
Contact us to get more information and pricing on converting this plan to use T-Rex Connectors. To learn more about the connectors you can visit their website, https://ctpostandbeam.com.



















